Béres Architects have designed the Hideg House (Hideg-ház) located in Koszeg, Hungary.
Project description from the architects
Focusing on sculptural cliffs and friendly hillside woods, Hideg-ház is an unusual object in the landscape of the outskirts of Koszeg, a charming historical town in Hungary.
The site had been used as a quarry a few cenutries ago so the exposed rock face was one of the strongest elements of the environment. In order to get enough direct sunlight all-year-long and to stay close to the sculptural cliffs, the building had been placed about 10 meters above the road that runs along the bottom of the valley.
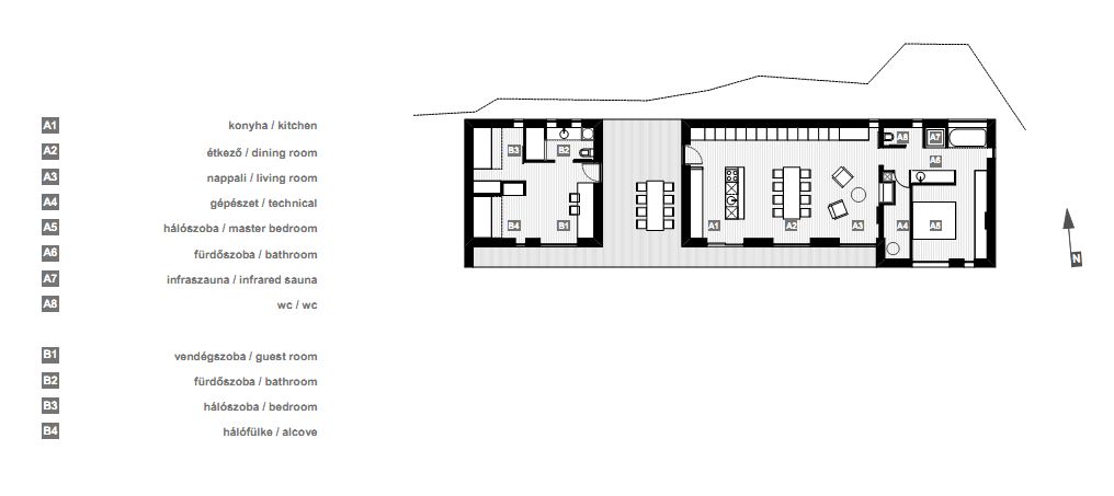
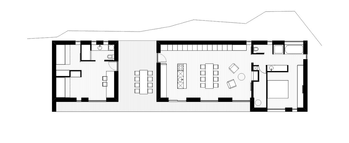
“An abstract footprint of a family’s lifestyle – perhaps these are the best words to describe the floor plan” architect Attila Béres says. The wooden cabin is floating a few steps above the natural terrain. The two parts are tied together with a thick black frame. These units taken apart create space for the covered outside terrace which became the central space of the cabin with its perfect views towards the colourful forms of the exposed rocks and the woods on the south side.
Natural lights and views to the surrounding nature were the most important factors at the arrangement of spaces. The solid and open surfaces of the 110 sqm building react to these elements as well – large but shaded openings towards the best views on the south side, glimpses of the rock from accentuated spots on the north.
The contrast between the rough sawn larch cladding stained black on the exterior surfaces and the same material with natural finish and smooth surface on the inside leads visitors towards the interior spaces. The clear white walls in the interior pick up the random colours of the sky and the surroundings.
The building is located in a country with very diverse climate. Hot summers and cold winters desire a smart mix of architectural decisions to keep the cabin comfortable and easy to run in all four seasons. The clients had a clear concept about what they wanted to achieve in terms of building services and comfort. A combination of high-tec and simple ecological solutions resulted in extremely low energy consumption and moderate building cost.
Hideg-ház is the first project realized by Attila Béres and Jusztina Balázs. The young architecture firm started the design of this building in 2009 when Mr. Hideg noticed Attila Béres in Wallpaper magazine’s Graduate Directory – an annual list of talented young architects. Detailed design and construction of the cabin finished in 2013.
Mr. Hideg and his wife spent 3 years on site to build this precisely detailed and custom-tailored house by hand. They carried out almost every phase of construction from cleaning the cliffs to building custom furniture. Their devotion and insistent enthusiasm had key importance along the process of design and construction of the holiday home.



























Architect: Béres Architects Ltd.
Photography: Tamás Bujnovszky
No comments:
Post a Comment