Tuesday, January 7, 2014

Foz do Douro II House by José Carlos Cruz

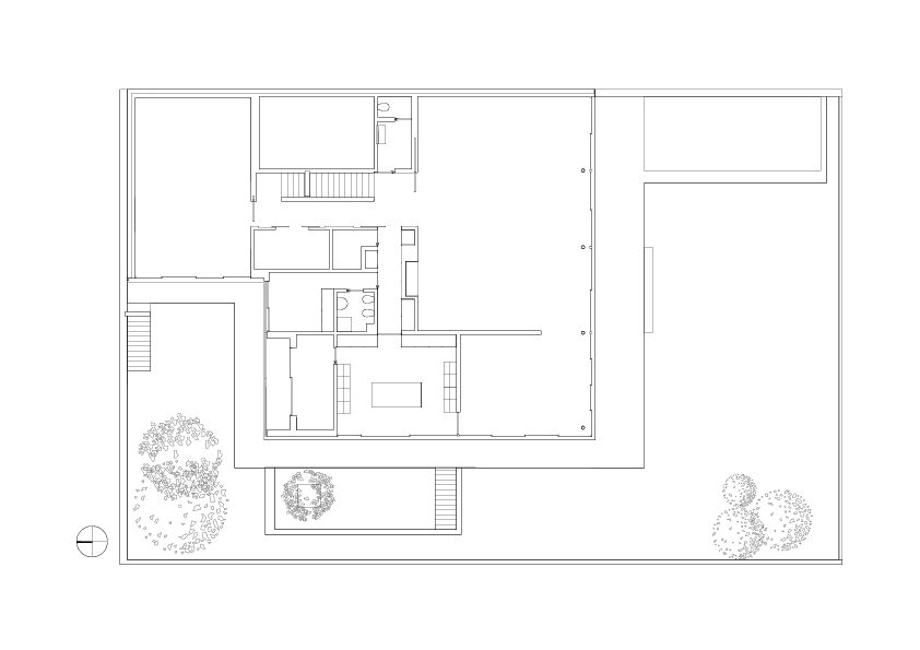
José Carlos Cruz has designed the Foz do Douro II House located in Porto, Portugal.


fo_070114_05



fo_070114_07


fo_070114_09


fo_070114_14


fo_070114_15


fo_070114_16


fo_070114_18


Project description



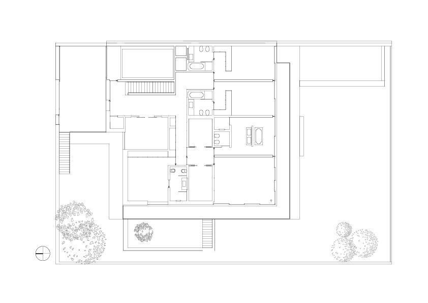
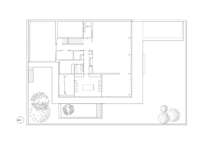
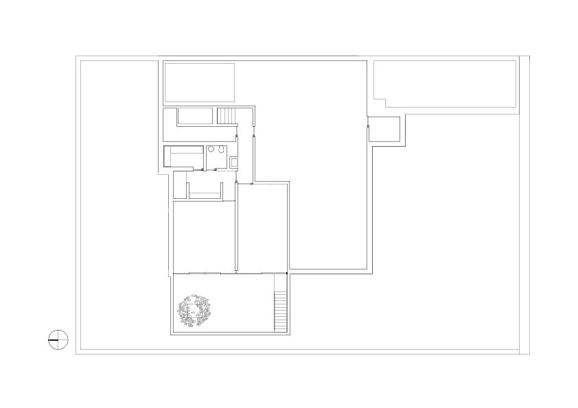
The house is placed on a hill between two streets and two houses. Its footprint was dictated by the location of the old building. The transparency and natural light claim itself as a fundamental element in the project, allowing to see the river through the platan treetops.


Transparency also gives us an illusion of continuity between the interior composition and the external context. Plasticity and sober decoration, minimalist yet rich, are expressed in the materials, in the black and white colour games, in the design objects and works of art. The exposure facing the river contrasts with the intimate way the house relates with the street.



fo_070114_01 fo_070114_02 fo_070114_03 fo_070114_04 fo_070114_05 fo_070114_06 fo_070114_07 fo_070114_08 fo_070114_09 fo_070114_10 fo_070114_11 fo_070114_12 fo_070114_13 fo_070114_14 fo_070114_15 fo_070114_16 fo_070114_17 fo_070114_18 fo_070114_19 fo_070114_20 fo_070114_21 fo_070114_22 fo_070114_23 fo_070114_24 fo_070114_25 fo_070114_26

Design: José Carlos Cruz

Photography: FG+SG


No comments:

Post a Comment