Tuesday, January 14, 2014

Cliffhanger Residence by Kevin Vallely Design

Kevin Vallely Design have recently completed the Cliffhanger Residence located in North Vancouver, Canada.


cl_140114_01


cl_140114_04


cl_140114_05


cl_140114_08


cl_140114_09


cl_140114_10


cl_140114_16


Project description



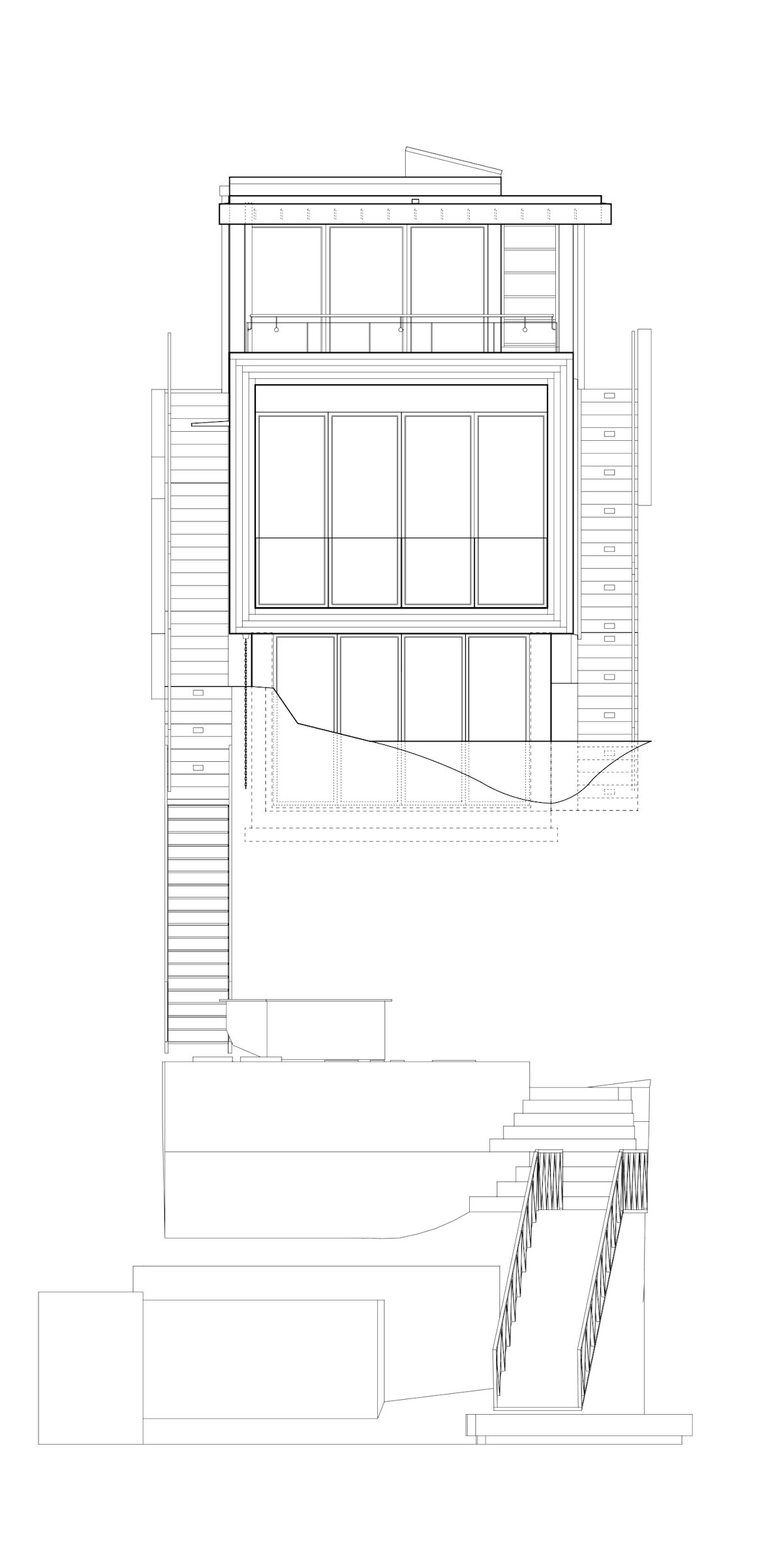
Situated on the steep south facing slopes of North Vancouver’s Indian Arm, the Cliffhanger Residence pays homage to the tenets of modern architecture while expressing a distinctly regional character to create a clean, contemporary West Coast esthetic.


The three-level home sits atop a tiny site that would be defined as challenging by size alone – it’s a mere 25ft wide by 100ft long – but the fact that the site drops nearly 60ft over its 100ft length seriously ratcheted up the difficulties for the design team.


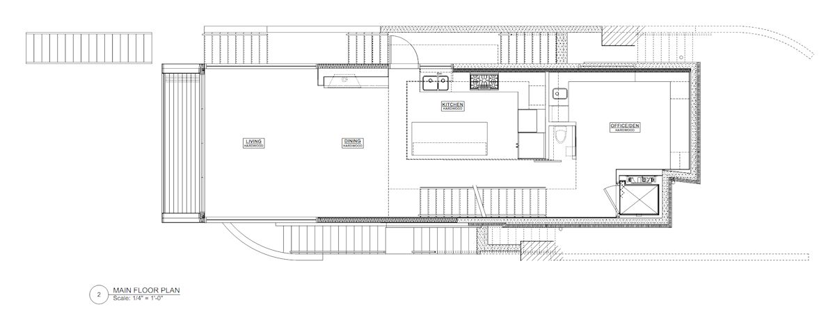
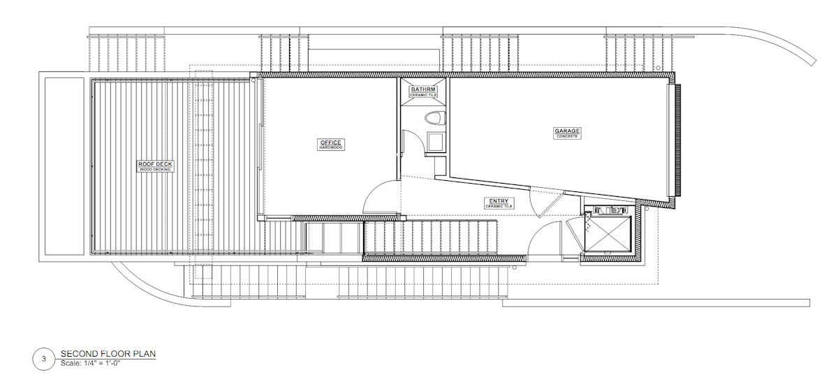
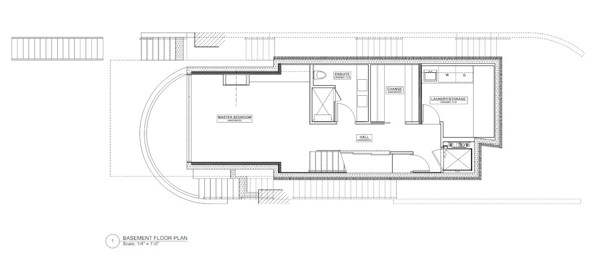
The home is laid out on a simple open plan with the key day-to-day activity areas of kitchen, living and dining located on the intermediate level with unobstructed views to the water. At a mere 1986sf in overall area the home is designed to be efficient and multi-functional with no space going unused. The house is rated highly energy efficient by the Canadian Ener-guide energy efficiency program.


The Cliffhanger residence represents a regional adaptation to a modern esthetic that allows it to straddle the seemingly incongruous worlds of a big city metropolis and rugged mountain landscape.


The home is designed by Kevin Vallely Design and built by the Econ Group, Greater Vancouver’s only explicitly modern residential contractor.



cl_140114_01 cl_140114_02 cl_140114_03 cl_140114_04 cl_140114_05 cl_140114_06 cl_140114_07 cl_140114_08 cl_140114_09 cl_140114_10 cl_140114_11 cl_140114_12 cl_140114_13 cl_140114_14 cl_140114_15 cl_140114_16 cl_140114_17 cl_140114_18 cl_140114_19 cl_140114_20 cl_140114_21 cl_140114_22 cl_140114_23 cl_140114_24

Designer: Kevin Vallely Design

Builder: Econ Group Ltd


No comments:

Post a Comment