Sunday, January 5, 2014

22 Of The Best Drunk Texts Of 2013

Texting drunk..Not so smart..


The post 22 Of The Best Drunk Texts Of 2013 appeared first on Seriously, For Real?.


Raanana House by Sharon Neuman Architects

Sharon Neuman Architects have designed this house for a young family in Raanana, Israel.


sn_050114_01



sn_050114_02


sn_050114_06


sn_050114_07


sn_050114_08


sn_050114_09


sn_050114_010


sn_050114_015


sn_050114_016


sn_050114_019


sn_050114_020


Description from Sharon Neuman Architects



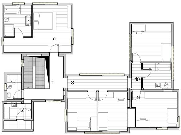
The house in Raanana was designed for a large family of four children and two parents. The brief was somewhat formal and unconventional.


Most of the houses I plan contain a large open space which holds several purposes. But here, each function has its own defined space – a “cube”.


The house consists of seven “cubes”; each one of a different height, each one contains two functions – one on each floor.


Since the client is a chef, the kitchen is in the largest cube. Above it there is a double children’s room. The living room is in the second largest cube, and above it – the master bedroom. There is a family room, a formal dining room, a mud room, a lobby which allows horizontal and vertical movements, and more. A basement is located underneath it all. Four outdoor “rooms” complete the assemblage.


Another problem solved by this scheme is the building code which required red tiled roofs in Ra’anana. Red tiled roof conflicts with the modern nature of the building. Dividing the house into a a “village” of seven “cubes” allowed for smaller roofs and moderate slopes, thus the roofs are completely hidden and not seen from the street level nor from the garden.


Each cube is defined by 20 cm thick walls around it. I chose to emphasize the transitions between spaces by keeping the 40 cm thickness of the “double” walls wherever the “cubes” connect, and creating notable thresholds. The thickness of the walls was also utilized for storage.



sn_050114_01 sn_050114_02 sn_050114_03 sn_050114_04 sn_050114_05 sn_050114_06 sn_050114_07 sn_050114_08 sn_050114_09 sn_050114_010 sn_050114_011 sn_050114_012 sn_050114_013 sn_050114_014 sn_050114_015 sn_050114_016 sn_050114_017 sn_050114_018 sn_050114_019 sn_050114_020 sn_050114_021 sn_050114_022 sn_050114_023 sn_050114_024

Architecture by Sharon Neuman Architects


Photography by Amit Gosher


.